杉浦英一建築設計事務所
|白楽の家
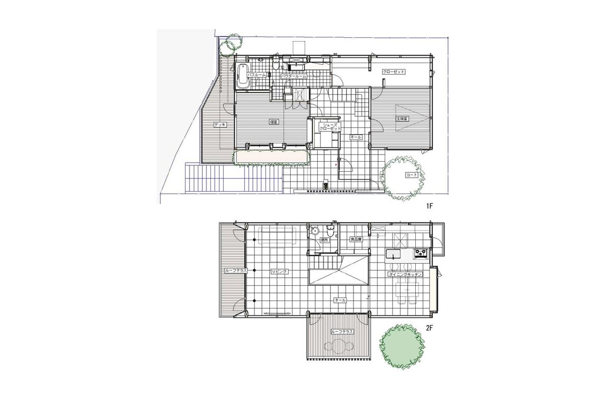
■ 上昇する動線
敷地が高台にあるという好条件を活かし,リビングスペースを2階とし,眺望を室内に取り込むよう計画した.また,敷地の中央にエントランス空間を配置し,ホールから各部屋へ無駄の無い動線としている.2階への階段をつづける事で、入り口から2階へと続く上昇感を持たせる事を意図している。
■ 3つの勾配屋根
3種類の勾配をもつ屋根は3つのボリュームとして外観にリズムをあたえるとともに,室内の連続空間に光の陰影をあたえている.2階部分を濃い色の屋根材で包み込み大開口をより強調する表情としている.
■ 眺望の開けたリビングダイニング
眼下にひらけた眺望を屋内に取り込むため南西方向を全開口とし,リビング・ホール・ダイニングキッチンを明るいワンルーム空間としている.さらに,ルーフテラスを連続させることでより開放感を出した.
新しい住まいの設計2006年4月号
ニューハウス2006年6月号
ミセス No.614 2006年3月
竣 工:2005年6月
所 在 地 :神奈川県横浜市
構造規模:木造地上2階建 地下車庫
用 途:専用住宅
敷地面積:140.39平方メートル
建築面積:70.17平方メートル
延床面積:129.56平方メートル
施 工:栄港建設株式会社